VALLE MAIRA

(prov. Cuneo)
Piemonte - Italia

Cercando le tracce
del nostro passato

--

IL LAZZARETTO di CAUDANO Stroppo

Tratto da Tratto da : "Il geometra della provincia granda" n.3.
Ricerca dell'architetto Valeria Abello - Tesi di laurea "recupero funzionale e statico di un nucleo rurale in valle Maira: il Lazzaretto di Caudano".


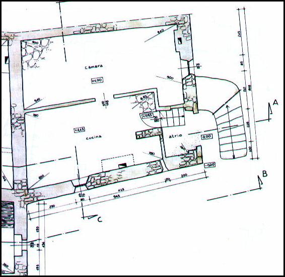
Il Lazzaretto di Caudano si trova nel territorio del comune di Stroppo. La costruzione è di dimensioni modeste, ma le sue due bifore di facciata e il portale evidenziano la sua importanza: edificato nel 1463 fu luogo adibito a ricovero degli appestati della valle.
L' architetto Valeria Abello ha studiato questo fabbricato nella sua tesi di laurea "recupero funzionale e statico di un nucleo rurale in valle Maira: il Lazzaretto di Caudano". La tesi è divisa in due parti: la prima di ricerca ed analisi dal punto di vista storico del comprensorio della valle Maira, del comune di Stroppo e delle sue frazioni, la seconda riguardante le verifiche di degrado strutturali, il consolidamento e il recupero dell' antico complesso ospedaliero di Caudano.
Il Lazzaretto si allontana sia dalle architetture religiose che da quelle residenziali rurali ; e' l' emblema dell' architettura tipica delle abitazioni signorili di epoca medievale in valle Maira.

INQUADRAMENTO STORICO

I primi insediamenti nella zona di Stroppo sono fatti risalire ai Liguri ed ai Romani. Il nome appare per la prima volta sui documenti di fondazione del monastero di Caramagna il 28 maggio 1028. Nel medioevo Stroppo fu libero comune salvaguardato dal Marchesato di Saluzzo; questo periodo di relativa autonomia fu anche quello di maggior splendore per la valle, fatto documentato dalla costruzione tra il 1200 e il 1500 di bifore e portali di chiara origine medievale. Nel 1600 la valle Maira passò sotto i Savoia e Stroppo divenne feudo del conte Pallavicini di Ceva, poi passò al senatore Dalla Chiesa e alla famiglia Taricco di Cuneo.

LOCALIZZAZIONE

Caudano (1129 s.l.m) è raggiungibile dalla strada statale 22 della Val Maira, con deviazione per Stroppo verso Paschero, imboccando all' altezza del cimitero una stretta strada comunale. La borgata è un insediamento di tipo a sella e probabilmente dalla sua buona esposizione e posizione deriva il nome "caldam" (1160). Il paese è organizzato attorno ad una piccola piazza con una fontana; gli edifici più importanti sono il Lazzaretto e la chiesa di S. Chiaffredo con un' antica meridiana.

CENNI STORICI DEL NUCLEO DEL "LAZZARETTO"

Il medievale "Ospedale del Caudano" o "Lazzaretto" è disabitato da molti anni e sta andando in rovina. Recentemente acquistato dall' Amministrazione comunale non e' però ancora stato oggetto di opere di ristrutturazione per mancanza di fondi. La data di costruzione risale al 7 luglio 1463; l' ospedale fu dotato di fondi e sorretto dalla generosità degli stroppesi e dei valligiani e funzionò per 130 anni. Rimane un mistero la scelta di Caudano come luogo di edificazione di un ospedale per poveri.

Tratto da : "Il geometra della provincia granda" n.3 / 2000 - (C G C Collegio Geometri Cuneo)

ghironda
valle Maira
Stroppo
TEMPO LIBERO
Rubriche

by www.ghironda.com